Купить. Дом 73 м2 на участке 6 сот.

Продажа: Дом (id: Z2388)

4 500 000 ₽

Свободная продажа

Контакт: 79786920165

Республика Крым, Симферопольский, МирноеВ черте города.

4 500 000 ₽

Свободная продажа
Расположение

Описание

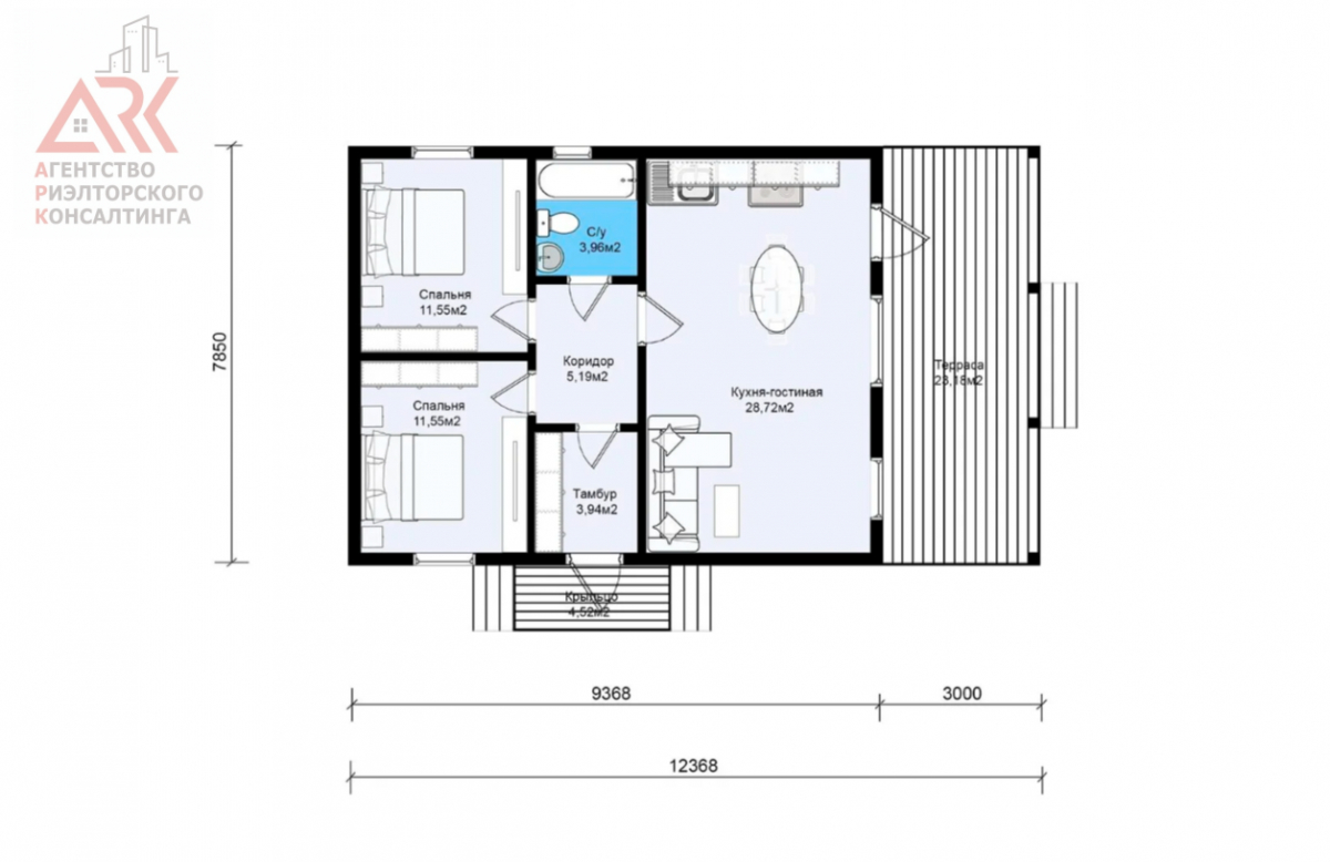
Связь сейчас очень плохая - пишите, пожалуйста, если не дозвонились. Ждём от вас сообщения, и обязательно перезвоним. ЧИТАЙТЕ ОПИСАНИЕ!!! Домокомплект из СИП- панелей по типовому проекту Инжир2, площадью 73 м2 от компании "Строник - Юг". В Крыму и г. Севастополь - по договору и с гарантией 25 лет!! Планировка включает в себя 3 спальни и просторную кухню-гостиную. Этот домокомплект отлично подойдет для большой семью, а на просторной террасе можно принимать гостей. Площадь дома включая террасу 101,8 м². В домокомплект входят: 1. Ростверк-обвязка 190×45 мм в три доски 2. Перекрытие пола (СИП 224 мм, двойная доска 190×45 мм — 2 шт) с шагом 622 мм 3. Стены наружные (СИП 174 мм) с шагом 622 мм, стены внутренние (СИП 124 мм, 174 мм). 4. Весь необходимый пиломатериал, прошедший камерную сушку, калиброванный, антисептированный, согласно тех. документации 5. Фермы на металлозубчатых пластинах (комбинированные сводчатые или прямые), контрбрус 45×45 мм, обрешётка 90×20 мм 6. Набор необходимой документации: планировки, визуализации, планы фасадов, кровли, раскройки, спецификации и т.д. Преимущества: Экономия Дома из СИП-панелей в 2 раза бюджетнее домов из классических материалов. При оформлении заказа вы будете точно знать конечную стоимость и сможете сэкономить до 500 000 рублей при самостоятельном монтаже. Качество по стандартам завода Гарантируем высокое качество материалов благодаря равномерной камерной сушке (исключает риск появления деформаций и трещин во время нагрузок), обработке антисептиками и антипиренами от появления грибка и плесени, а также обязательной сертификации. Помощь со строительством Вместе с домокомплектом вы получите подробную документацию и пронумерованные комплектующие. По всем интересующим вопросам звоните. Z2388
О доме
Количество комнат: 2
Общая площадь: 73.1 m²
Жилая площадь: 23.1 m²
Кухня: 28.7 m²
Количество этажей: 1
Об участке
Участок: 6 сот
Статус участка: индивидуальное жилищное строительство (ИЖС)
Сервер Джепаров
Укажите Ваше имя
Укажите Ваш номер телефона
Нажимая кнопку Заказать звонок, вы даете согласие на обработку персональных данных